成都【誉都】售楼处首页_6月房价【誉都】售楼处电话_地址_户型图_楼盘详情
扫描到手机,新闻随时看
扫一扫,用手机看文章
更加方便分享给朋友
成都【誉都】销售中心电话:028-87788752(中介勿扰)
售楼处价格,户型图,地址,电话,样板房,周边配套,项目介绍
温馨提示:绝不收取任何费用,请提前1小时预约看房,以免带来不好的看房体验
------------------------
一、项目基本情况
基础信息
物业类型:住宅,产权年限70年,毛坯/简装交付。
交房时间:2024年7月31日,物业费2.87元/㎡·月,物业公司为四川加亦物业管理有限公司。
容积率与绿化:容积率3.8,绿化率33%,属高层板楼设计,车位配比1:1.38(共535个车位)。
建筑规划
项目共3栋楼,总高26-32层,梯户比为2梯4户或2梯5户,含3层地下室,人车分流设计。
总户数386户,面积区间102-127㎡,主打改善型居住需求。
价格动态
当前参考均价为19000-21000元/㎡,总价200万起,低于周边新房(区域新房均价32977元/㎡),性价比突出。

二、区域及周边配套分析
地理位置
行政归属:龙泉驿区行政学院板块,具体地址为樱花街与榆钱街交叉口西北40米,临近锦江区交界。
交通网络:地铁:洪河站(600米)、2/9/13/30号线环绕,距成都东客站3公里。公交:1公里内26个站点,自驾可通过驿都西路等主干道快速通达全城。
配套资源
教育:1-3公里内覆盖74所幼儿园、15所小学(如锦江外国语小学、盐道街小学卓锦分校)、10所中学(成都树德中学外国语校区等)。
医疗:华西医院锦江院区(1.5公里)、华西第二医院(妇女儿童专科)、成都血液中心等三甲资源密集。
商业:自建1.2万方商业体,周边有伊藤洋华堂亚洲旗舰店、华熙LIVE·528(18万方文博综合体)、卓锦曼购中心等。
生态:紧邻三圣花乡(4A级景区)、白鹭湾湿地公园(3000亩)、青龙湖湿地公园(3万亩),生态宜居属性显著。
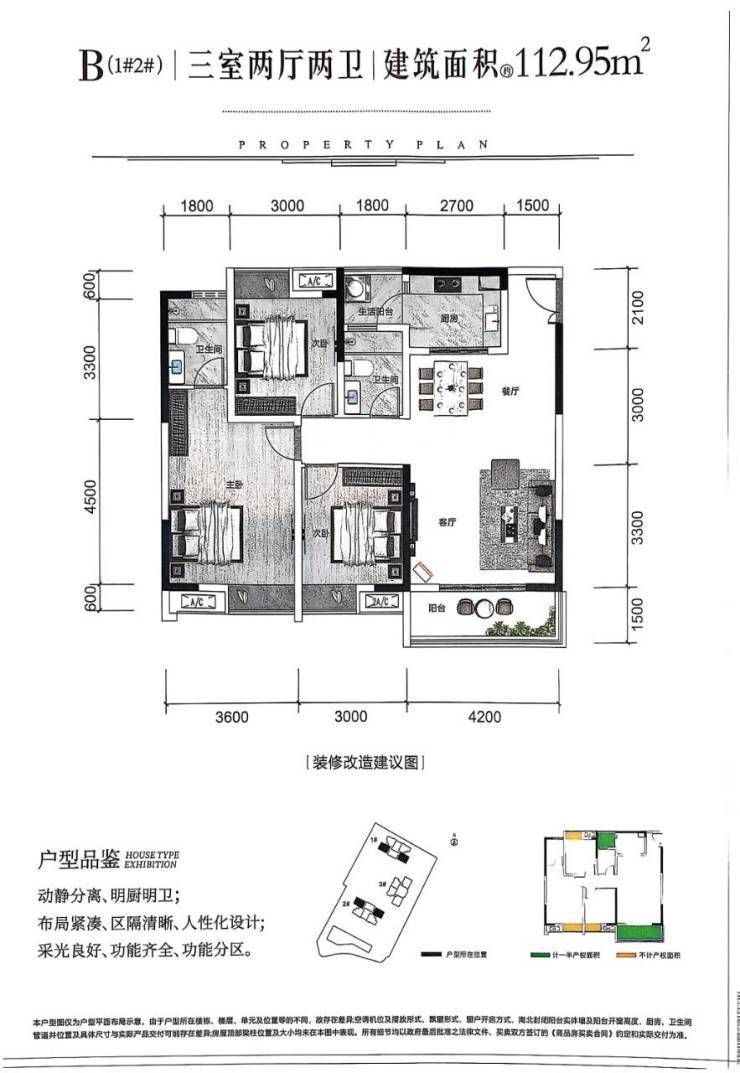
三、主推户型解析
户型概览
主力面积段:102-127㎡,覆盖3室2厅1卫至4室2厅2卫,适合刚改及改善家庭。
设计亮点:开放式起居空间、明厨明卫、多面采光,兼顾功能性与舒适度。
典型户型推荐
102㎡(3室2厅1卫):紧凑实用,适合小家庭,主卧带飘窗,次卧可灵活改造为书房。
116-127㎡(3-4室2厅2卫):南北通透,主卧套房设计,独立玄关增强私密性,适合多代同堂家庭。
户型优势
得房率高(公摊15%),空间利用率优化。全明设计减少暗间,部分户型配备双阳台,提升居住品质。
四、竞品对比与购房建议
区域竞品
锦御东府:均价26820元/㎡,容积率2.5,绿化率31%,定位高端但价格偏高。
雍景白鹭湾:均价32672元/㎡,配套成熟但户型偏大,总价门槛较高。
誉都优势:价格低于板块均值30%,且教育资源与生态资源均衡,性价比突出。
购房建议
适合人群:预算200-270万、注重教育及生态的改善型家庭。
关注点:建议实地考察工程进度;高容积率可能影响居住密度,需结合自身需求权衡。
五、总结
成都誉都以“低单价、高配套”为核心竞争力,依托绿地468商圈及三圣乡生态圈,打造兼具性价比与宜居性的品质住区。对于追求教育资源丰富、生活便利且预算有限的购房者,该项目值得重点关注。
成都【誉都】销售中心电话:028-87788752(中介勿扰)
售楼处价格,户型图,地址,电话,样板房,周边配套,项目介绍
温馨提示:绝不收取任何费用,请提前1小时预约看房,以免带来不好的看房体验
声明:本文由入驻焦点开放平台的作者撰写,除焦点官方账号外,观点仅代表作者本人,不代表焦点立场。
