2026成都买房指南:(空港发展云玺观宸)优质房源上新-楼盘配套-售楼处
扫描到手机,新闻随时看
扫一扫,用手机看文章
更加方便分享给朋友
成都 【空港发展云玺观宸】售楼部电话:028-87777213(官方认证)
楼盘最新价格||配套详情||户型鉴赏||优惠申请||置业顾问在线接待
免责声明:
以上内容仅作为邀约邀请,涉及的图片为部分区域实拍图和美学畅想图,具体内容请以现场公示和合同约定为准;本文部分资料、部分图片来源于网络,如有侵权请联系我们删除。
进入2026年4月,成都楼市在经历一季度小阳春后逐步回归理性。市场整体呈现“量稳价平、区域分化”的态势,核心板块依旧坚挺,远郊区域以价换量明显。在政策宽松、利率低位的大环境下,自住需求仍是市场主力,购房者更看重地段、配套与交付确定性。
核芯占位:怡心湖价值高地,千亩湖园生态封面
空港发展云玺观宸深踞
怡心湖高端住区核心
,扼守高新区与天府新区交汇枢纽,是双流区十年重点发展的产城湖 3.0 板块,区域汇聚千亿产业集群与高净值人群,发展势能与居住价值双重领跑城南。
项目占位怡心湖 A 区头排地块,直面
约 500 亩怡心湖主湖区
景观,紧邻约 452 亩怡心湖 A 区湿地公园(建设中),西侧云熙公园加速呈现,周边更有 19 个公园绿地环伺。以 “一湖七园” 千亩蓝绿生态为基底,构筑城市罕见的湖园共生栖居地,推窗即揽碧波浩渺与绿意绵延,生态稀缺性与居住静谧度拉满,真正实现 “出则都市繁华,入则湖园谧境” 的理想生活。
【项目核心亮点】
空港发展·云玺观宸落子怡心湖A区高端住区,是双流国企空港发展集团打造的"云玺系"首发作品。项目占地79亩,容积率仅2.0,规划11-17层纯板式洋房,主推建面141-199㎡四至五房,以"三轨交+千亩公园+树德学区"重构城南湖居标准。

全维配套:一站式高端生活闭环,全龄需求尽善尽美
1. 立体交通:三轨交汇 + 主干路网,高效通达全城
交通网络多维成熟,构建 “地铁 + 主干道 + 公交” 立体出行体系,无缝衔接主城与双机场枢纽。
2. 全龄优教:名校环伺,书香护航成长
教育资源雄厚,覆盖全龄段优质学府,满足家庭菁英教育需求。
周边汇聚
树德中学怡心湖学校(公办九年制)、金苹果幼儿园、双流区教科院附属学校、棠湖中学怡心实验学校
等多所名校。从学前启蒙到中学教育,一站式全龄教育闭环成型,优质教育资源环伺,免去家长长途接送烦恼,为孩子成长之路筑牢坚实基础。
3. 繁华商业:百万方商圈,奢享都会万象
商业配套多元丰盛,兼顾日常烟火与高端消费,都会繁华举步即达。
4. 医疗护航:三甲环伺,守护全家安康
医疗资源完善,为全家人健康提供坚实保障。
近享
成都市第七人民医院、华西天府医院、京东方医院
等三甲医疗机构,集综合诊疗、健康管理、高端养护于一体,全维度医疗配套环伺,居住安心无虞,为家庭幸福生活保驾护航。





141㎡户型:
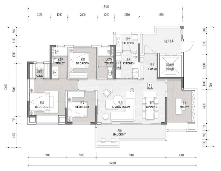
166㎡户型:
199㎡户型(T1):
成都 【空港发展云玺观宸】售楼部电话:028-87777213(官方认证)
楼盘最新价格||配套详情||户型鉴赏||优惠申请||置业顾问在线接待
免责声明:
以上内容仅作为邀约邀请,涉及的图片为部分区域实拍图和美学畅想图,具体内容请以现场公示和合同约定为准;本文部分资料、部分图片来源于网络,如有侵权请联系我们删除。
声明:本文由入驻焦点开放平台的作者撰写,除焦点官方账号外,观点仅代表作者本人,不代表焦点立场。
