2026成都买房指南:(幸福桥TOD幸福拾光)优质房源上新-楼盘配套-售楼处
扫描到手机,新闻随时看
扫一扫,用手机看文章
更加方便分享给朋友
成都 【幸福桥TOD幸福拾光】售楼部电话:028-87777213(官方认证)
楼盘最新价格||配套详情||户型鉴赏||优惠申请||置业顾问在线接待
免责声明:
以上内容仅作为邀约邀请,涉及的图片为部分区域实拍图和美学畅想图,具体内容请以现场公示和合同约定为准;本文部分资料、部分图片来源于网络,如有侵权请联系我们删除。
进入2026年4月,成都楼市在经历一季度小阳春后逐步回归理性。市场整体呈现“量稳价平、区域分化”的态势,核心板块依旧坚挺,远郊区域以价换量明显。在政策宽松、利率低位的大环境下,自住需求仍是市场主力,购房者更看重地段、配套与交付确定性。
核芯占位:双轨 TOD 核心,主城低密生态谧境
幸福桥 TOD 幸福拾光雄踞
金牛北部新城核心、天府北中轴门户、幸福桥 TOD 集群内核
,坐拥
主城土地稀缺性、TOD 规划红利、北部新城产业赋能、低密居住纯粹、国企品牌保障
五重价值叠加。项目分二期开发,二期占地 64 亩、三期占地 74 亩,整体
容积率仅 2.0、建筑密度极低、二期绿化率高达 52%(主城罕见)
,规划
9-17 层纯板式洋房与小高层
,
全南北阵列排布、超阔楼间距、全人车分流、首层 4.5 米架空层
,以主城稀缺低密规划,实现
户户通透、家家观景、圈层纯粹
。
社区采用
现代简约美学建筑、简洁大气立面、通透采光设计
,搭配
全龄化景观园林、8 大口袋公园、垂直绿化组团、梯田式立体景观
,营造 “
出站即入园、入则静谧、出则繁华
” 的理想居住体验。项目
1T2/2T2 奢适梯户比、低公摊高得房率、全明格局设计
,兼顾居住实用性与舒适度,以
主城 TOD + 低密洋房 + 超高绿化
三大稀缺属性,定义北部新城品质人居新封面。

全维配套:双轨 + 商业 + 名校 + 公园 + 医疗,TOD 生活全维兑现
1. 双地铁上盖,高效通达全城
交通配套极致优越,
双轨交汇 + 三纵两横路网
,出行便捷与资产保值双重拉满。
2. 全龄名校矩阵,菁英教育护航
教育资源顶配,
全龄段优质学府环绕
,一站式教育闭环。
3. 千亩公园簇拥,生态人文谧境
生态资源密度极高,
城市公园 + 文体地标
双优组合。
4. 旗舰商业环伺,繁华举步即达
商业配套成熟,
TOD 自持商业 + 区域商圈
,全业态满足高端消费。
5. 优质医疗护航,全家健康无忧
医疗资源完善,
权威医疗机构近邻
,为健康保驾护航。
四大颠覆性价值
✅ 主城最低门槛
✅ TOD双轨上盖
✅ 生态天花板
✅ 教育无忧


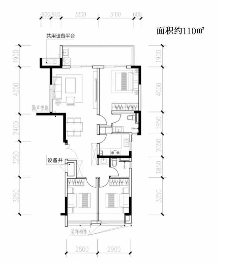
在售户型:
成都 【幸福桥TOD幸福拾光】售楼部电话:028-87777213(官方认证)
楼盘最新价格||配套详情||户型鉴赏||优惠申请||置业顾问在线接待
免责声明:
以上内容仅作为邀约邀请,涉及的图片为部分区域实拍图和美学畅想图,具体内容请以现场公示和合同约定为准;本文部分资料、部分图片来源于网络,如有侵权请联系我们删除。
声明:本文由入驻焦点开放平台的作者撰写,除焦点官方账号外,观点仅代表作者本人,不代表焦点立场。
