银川【建投盛世学府】销售中心首页【建投盛世学府】售楼处电话_价格_在售户型_楼盘详情
扫描到手机,新闻随时看
扫一扫,用手机看文章
更加方便分享给朋友
银川【建投盛世学府】售楼中心电话: 400-991-6193【营销中心】
____欢迎来电咨询|剩余户型|最新价格|楼盘动态||免费咨询
温馨提示:绝不收取任何费用,请提前1小时预约看房,以免带来不好的看房体验
【建投·盛世学府】项目笔记
左手学府,右手世界
西夏区教育小镇“芯”品质社区
开发商:宁夏建投置业有限公司
占地面积:54亩
总户数:608户
容积率:约2.1
绿化率:约35%
车位:人车分流,地上51个、地下460个
车位配比:1:0.8
交付标准:毛坯交付
交房时间:2025年8月30日
销售均价:7500元/㎡
公摊:小高层约21% ,洋房约17% ,10号楼约10%
物业:中房物业(物业费待定)
(鸟瞰图)
项目配套
【交通】:
立体交通,畅达全城。项目位于西夏区教育小镇核心区域,地处六横六纵一绕城的交通路网,紧邻金波北街,可从金波北街直达沈阳路快速通道,快速抵达银川北绕城及乌玛高速,横贯银川市三区,纵横路网便捷通达,半小时都市圈。周边公交站点:42路、47路、55路。
【商业】:
醇熟配套,丰盛人生。自带约2336㎡特色商业街,3公里范围内的西夏万达商圈、怀远商圈、同心路商圈,丰富的商业配套,为您提供更多的生活便利。
【教育】:
一站名校教育配套资源。银川市一幼西夏分园、银川市二十一小分校(文萃小学)、银川一中西夏校区(文萃中学),走出家门就是校门,全龄段品质教育。
【医疗】:
三大健康保驾护航。宁夏回族自治区人民医院西夏分院、中西医结合医院、宁夏回族自治区中医院,优质医疗服务护航幸福未来。
在售户型:建面约115-136㎡瞰景小高层、高层
户型摘选
盛世学府项目在售推楼栋
2# 【115㎡】 总高18F 均价:7300-7500
8# 【123㎡、124㎡】总高9F 均价:8300
9# 【128㎡】总高15F 均价:8000
6#【115㎡ 129㎡ 】总高16层 均价7500
央景楼栋,全城火热销售进行中
3+2+2户型 建筑面积约115㎡ 赠送约5㎡
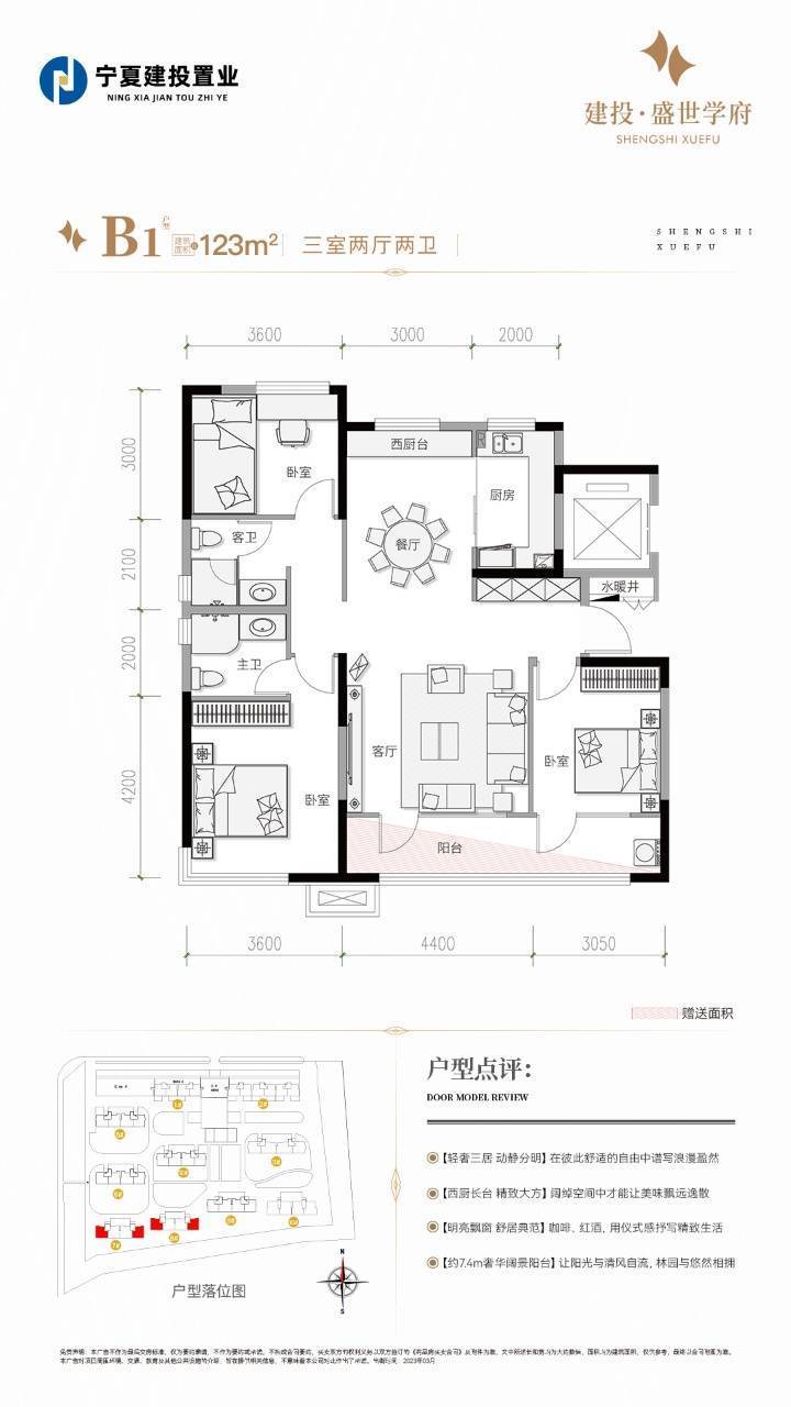
3+2+2户型 建筑面积约123㎡ 赠送约5㎡
3+2+2户型 建筑面积约124㎡ 赠送约5㎡
3+2+2户型 建筑面积约128㎡ 赠送约10㎡
4+2+2户型 建筑面积约136㎡ 赠送约5㎡
园区效果图

银川【建投盛世学府】售楼中心电话 400-991-6193【营销中心】
____欢迎来电咨询〢尊享内部优惠服务〢免费看房车接送〢
温馨提示:绝不收取任何费用,请提前1小时预约看房,以免带来不好的看房体验
声明:本文由入驻焦点开放平台的作者撰写,除焦点官方账号外,观点仅代表作者本人,不代表焦点立场。
